Következo
Elozo
Vissza az ajánlatlistáhozCserszegtomaj: Új építésű, modern családi ház egy csendes, szinte forgalommentes utcában
Nyilvántartási sz.: 33388
Gyors kapcsolat
Virtuális látogatás
Virtuális látogatás
Opciók
Opciók
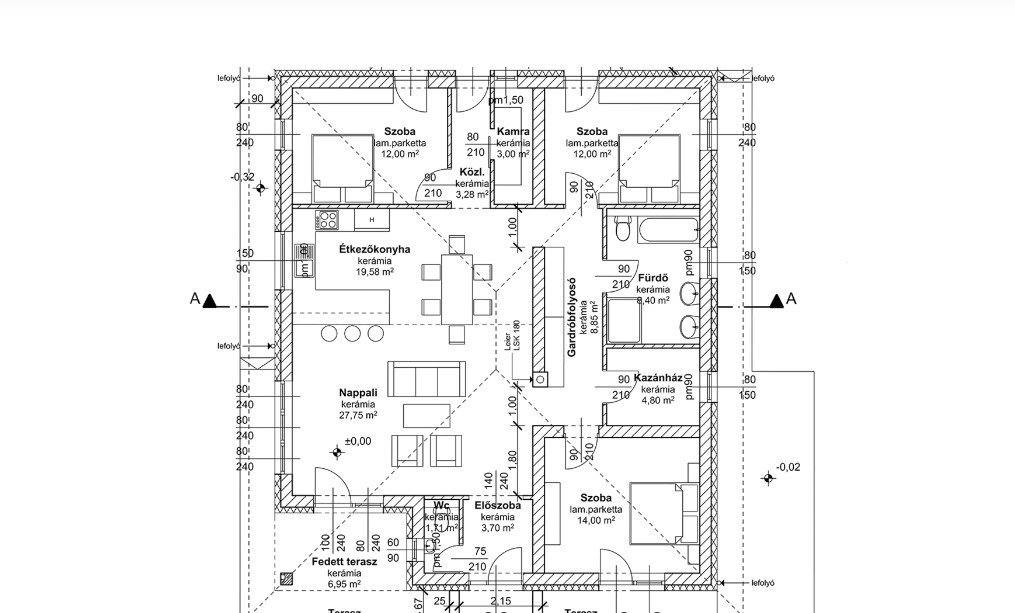
Legfontosabb adatok
Cím:
8372 Cserszegtomaj
Terület:
Lakóterület
Vételár:
378.000 €
Lakóterület kb.:
126 nm;
Telek kb.:
2.125 nm;
Szobák száma:
3
További adatok
További adatok
Ház típusa:
családiház
Jutalékköteles:
igen
Jutalék:
Vevőként Ön 1,21%-os áfát fizet az ingatlanért a s
Konyha:
Beépített konyha, Nyitva
Hálószobák száma:
3
Fürdoszobák száma:
1
Terasz:
1
Kémény:
igen
Pince:
Teljesen alápincézett
környék/környezet:
nyugodt környék
Építés éve:
2026
Padlóburkolat:
Járólap, Parketta
Állapot:
Elso beköltözo
Futés:
Padló
Futés módja:
Hoszivattyú, Fa
Részletes leírás
Részletes leírás
ingatlanleírás:
Új építésű, modern családi ház eladó egy csendes, gyakorlatilag forgalommentes utcában. Az ingatlan letisztult, modern formatervezéssel, praktikus elrendezéssel és nagy ablakokkal büszkélkedhet, amelyek világos és funkcionális élettereket teremtenek.
A ház szíve egy amerikai stílusú konyhával rendelkező, nyitott terű nappali, amely közvetlen kertkapcsolattal és teraszkapcsolattal rendelkezik. A szobák optimálisan kihasználtak, az elrendezés pedig a mindennapi élet igényeit szolgálja. A modern műszaki megoldásoknak köszönhetően a ház energiatakarékos.
Jelenlegi építési állapotában az új tulajdonosnak lehetősége van bizonyos belső jellemzőket - például padlóburkolatot, fürdőszobai berendezéseket és színeket - a fejlesztővel egyeztetve testre szabni.
Az ingatlan jól karbantartott, a környék csendes, zöld és kellemes, miközben a nélkülözhetetlen szolgáltatások könnyen elérhetők.
Ez az ingatlan ideális választás azok számára, akik új építésű, modern otthont keresnek, és akiknek fontos, hogy beleszólásuk legyen a végső designba.
A ház szíve egy amerikai stílusú konyhával rendelkező, nyitott terű nappali, amely közvetlen kertkapcsolattal és teraszkapcsolattal rendelkezik. A szobák optimálisan kihasználtak, az elrendezés pedig a mindennapi élet igényeit szolgálja. A modern műszaki megoldásoknak köszönhetően a ház energiatakarékos.
Jelenlegi építési állapotában az új tulajdonosnak lehetősége van bizonyos belső jellemzőket - például padlóburkolatot, fürdőszobai berendezéseket és színeket - a fejlesztővel egyeztetve testre szabni.
Az ingatlan jól karbantartott, a környék csendes, zöld és kellemes, miközben a nélkülözhetetlen szolgáltatások könnyen elérhetők.
Ez az ingatlan ideális választás azok számára, akik új építésű, modern otthont keresnek, és akiknek fontos, hogy beleszólásuk legyen a végső designba.
Felszereltség:
Közművek
Víz bekötve
Villany bekötve
Csatorna bekötve
Víz bekötve
Villany bekötve
Csatorna bekötve
Egyéb:
Talált egy ingatlant, és szeretne biztos lenni abban, hogy az ár és az állapot megfelelő?
Különösen külföldön előfordulhatnak felfújt árak vagy rejtett hibák. Építési szakértőnk a vásárlás előtt megvizsgálja az ingatlant, és segít elkerülni a kockázatokat.
Mivel a "látható állapotban eladó" elv alapján a későbbi hibákra vonatkozó igények nehezen érvényesíthetők.
Kérésre további szolgáltatásaink a keresési szerződés megkötésekor a következők:
- Keresési profil és megfelelő ingatlanjavaslatok
- Közös megtekintés
- Állapot- és kockázatértékelés
- Támogatás a vásárlási folyamat során
A jutalék tartalmazza:
- Ingatlan-nyilvántartási ellenőrzés (terhek és tulajdonjog)
- Németül beszélő ügyvéd/közjegyző ajánlása
- Adásvételi szerződés német fordítása
- Villany, víz, gáz, szemétszállítás stb. átruházása
- Ingatlankezelés kérésre az első évben
Megjegyzés:
Az ingatlanleírás részben vagy egészben a tulajdonos által megadott információkon alapul. Nem vállalunk felelősséget ezen információk pontosságáért és teljességéért.
Szeretné professzionálisan értékesíteni ingatlanát Németországban vagy Magyarországon?
Akkor kérjük, vegye fel velünk a kapcsolatot!
Több mint 200 000 aktív potenciális vásárló várja már az ajánlatát.
Felhívjuk figyelmét, hogy az ingatlan adatait mesterséges intelligencia (MI) segítségével hozhatták létre vagy módosíthatták. Azonban semmilyen lényeges funkció nem változott.
Különösen külföldön előfordulhatnak felfújt árak vagy rejtett hibák. Építési szakértőnk a vásárlás előtt megvizsgálja az ingatlant, és segít elkerülni a kockázatokat.
Mivel a "látható állapotban eladó" elv alapján a későbbi hibákra vonatkozó igények nehezen érvényesíthetők.
Kérésre további szolgáltatásaink a keresési szerződés megkötésekor a következők:
- Keresési profil és megfelelő ingatlanjavaslatok
- Közös megtekintés
- Állapot- és kockázatértékelés
- Támogatás a vásárlási folyamat során
A jutalék tartalmazza:
- Ingatlan-nyilvántartási ellenőrzés (terhek és tulajdonjog)
- Németül beszélő ügyvéd/közjegyző ajánlása
- Adásvételi szerződés német fordítása
- Villany, víz, gáz, szemétszállítás stb. átruházása
- Ingatlankezelés kérésre az első évben
Megjegyzés:
Az ingatlanleírás részben vagy egészben a tulajdonos által megadott információkon alapul. Nem vállalunk felelősséget ezen információk pontosságáért és teljességéért.
Szeretné professzionálisan értékesíteni ingatlanát Németországban vagy Magyarországon?
Akkor kérjük, vegye fel velünk a kapcsolatot!
Több mint 200 000 aktív potenciális vásárló várja már az ajánlatát.
Felhívjuk figyelmét, hogy az ingatlan adatait mesterséges intelligencia (MI) segítségével hozhatták létre vagy módosíthatták. Azonban semmilyen lényeges funkció nem változott.
Jutalék:
Vevőként Ön 1,21%-os áfát fizet az ingatlanért a számlázás és a vételi szerződés aláírásakor. Ez az ár tartalmazza:
- Az ingatlan-nyilvántartás ellenőrzése terhek és tulajdonjogok tekintetében
- Németül beszélő ügyvéd ajánlása (Magyarországon ügyvédek hitelesítik a vételi szerződéseket, nem közjegyzők, mint Németországban)
- A vételi szerződés német fordítása
- Minden közműszolgáltatás, például villany, gáz, víz, hulladékkezelés stb.
- Az ingatlan-nyilvántartás ellenőrzése terhek és tulajdonjogok tekintetében
- Németül beszélő ügyvéd ajánlása (Magyarországon ügyvédek hitelesítik a vételi szerződéseket, nem közjegyzők, mint Németországban)
- A vételi szerződés német fordítása
- Minden közműszolgáltatás, például villany, gáz, víz, hulladékkezelés stb.
Kapcsolattartó személy
Immocenter Ungarn | Hotel Consulting Meyer Kft
Úr hcm Meyer
Postfach 32
8394 Alsópáhok | Hévíz
telefonszám: 0049 171 6234 010
Úr hcm Meyer
Postfach 32
8394 Alsópáhok | Hévíz
telefonszám: 0049 171 6234 010
Vissza az ajánlatlistához








