Ajánlat 1226 tól 1310
Következo
Elozo
Vissza az ajánlatlistához

Héviz: (AAA) Előregyártott ház az Ön által választott helyszínen 1250 EUR/m²-ért

Nyilvántartási sz.: CM245
  •  
  •  
  •  
  •  
  •  
  •  
  •  
  •  
  •  
  •  
  •  
  •  
  •  
  •  
  •  
 
 
 
 
 
 
 
 
 
 
 
 
 
 
 
Gyors kapcsolat
Virtuális látogatás
Virtuális látogatás
QR-Code
Legfontosabb adatok
Cím:
8380 Héviz
Terület:
Lakóterület
Vételár:
125.000 €
Lakóterület kb.:
100 nm;
Telek kb.:
1.150 nm;
Szobák száma:
3
További adatok
További adatok
Ház típusa:
Kész ház
Szintek száma:
1
Jutalékköteles:
igen
Jutalék:
Vevőként 2,54%-os áfát fizet az ingatlanért a szám
Konyha:
Beépített konyha
Fürdoszoba:
Zuhanyzó
Hálószobák száma:
2
Fürdoszobák száma:
1
Terasz:
1
Idosek számára alkalmas:
igen
Állapot:
Elso beköltözo
Futés módja:
Elektromos, Hoszivattyú
Energiatípus:
Alacsony energiafelhasználás
Részletes leírás
Részletes leírás
ingatlanleírás:
Előregyártott ház az Ön által választott helyszínen - kulcsrakészen 1250 EUR/m²-től hőszivattyúval, padlófűtéssel és napelemekkel (Ingatlanszám: CM245)

Ár példa: 1250 EUR/m²-től (pl. 100 m² ≈ 125 000 EUR) - Ház típusa: Előregyártott ház, 1 szintes, 3 szoba / 2 hálószoba / 1 fürdőszoba - Jellemzők: Beépített konyha, terasz, idősek számára alkalmas - Energia és technológia: Hőszivattyú, padlófűtés, napelemek, "alacsony energiafogyasztású" szabvány - Berendezés: Nincs - Állapot: Első beköltöző / kulcsrakész - Elhelyezkedés: Szabadon választható telek Nyugat-Magyarországon (beleértve a Hévíz/Balaton környékét is).
immocenter-ungarn.com

Miért tökéletes ez az előregyártott ház külföldiek számára:

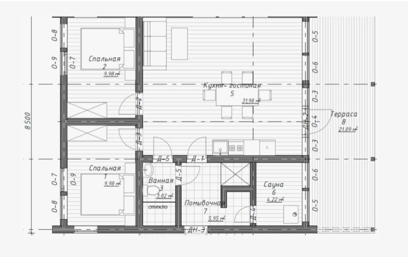
Tervezési biztonság és gyorsaság: Kulcsrakész építés - beköltözés felújítás helyett. Példa alaprajz 3 szobával egy szinten: alkalmas családok és idősek számára.

Alacsony rezsiköltségek: Hőszivattyú + padlófűtés + napelemek - hatékonyságra tervezve, a szolgáltató szerint közel nulla rezsiköltség.

Szabad helyszínválasztás: Ön dönti el az építési helyszínt - a szolgáltató megfelelő telkekkel rendelkezik Nyugat-Magyarországon (Balaton/Termál régió).

Hosszú távú biztonság: 25 év garancia a külső homlokzatra (szolgáltatói információk).

Berendezés és technológia (rövid áttekintés):
Nappali/étkező teraszkapcsolattal
2 hálószoba, 1 fürdőszoba (zuhanyzós)
Beépített konyha
Teljesen légkondicionált (hűtés/fűtés funkció rendszeren keresztül)
Hőszivattyú + padlófűtés + napelemek
Alacsony energiafogyasztású, első beköltöző.

Telek és elhelyezkedés:

Telek: szabadon választható; Tipikus példaméret a listákban körülbelül 1150 m² - igény szerint választható (pl. Hévíz/Balaton régió, termálüdülők, csendes falvak).

Régióbeli előnyök: kiváló egészségügyi/termál infrastruktúra, a Balaton közelsége, nemzetközi közösség, gazdag természeti környezet.

immocenter-ungarn.com

Szolgáltatások és jutalék:

Vevői jutalék: 2,54%, beleértve a magyar ÁFA-t - beleértve a földhivatali ellenőrzést, németül beszélő ügyvédek ajánlását, német szerződésfordítást és a közművek (villany, gáz, víz, szemétszállítás) átjelentkezését.

immocenter-ungarn.com

Kinek ajánlott ez a ház?

Külföldieknek és újonnan érkezőknek, akik új és hatékony otthont szeretnének építeni

Családoknak/idősebbeknek az akadálymentes, egyszintes megoldásnak köszönhetően

Otthoni irodának és távmunkában dolgozóknak, nagyon alacsony üzemeltetési költségekkel

Befektetőknek a balatoni/termálfürdői területen (a nyaralóhasználat a helyi előírásoktól függ)
Ház /Telek fekvése:
Ön dönt :-)
Kiváló ingatlanokat kínálunk Önnek Nyugat-Magyarországon
Jutalék:
Vevőként 2,54%-os áfát fizet az ingatlanért a számla bemutatásakor és a vételi szerződés aláírásakor. Ez az ár tartalmazza:

- Az ingatlan-nyilvántartás felülvizsgálata a terhek és a tulajdonosi jogok tekintetében
- Németül beszélő ügyvéd biztosítása (Magyarországon ügyvédek hitelesítik a vételi szerződéseket, nem pedig közjegyzők, mint Németországban)
- A vételi szerződés német fordítása
- Minden közműváltozás, például villany, gáz, víz, szemétszállítás stb.
Kapcsolattartó személy
 
Immocenter Ungarn | Hotel Consulting Meyer Kft
Úr C.Meyer REBA Immobilien AG
Pletschenstrasse 20
3952 Susten (CH)

telefonszám: +49 171 6234010
mobilszám: +43 677 62820325
code


Vissza az ajánlatlistához