Következo
Elozo
Vissza az ajánlatlistáhozHévíz: () Projekttelek Hévíz nyugati részén
Nyilvántartási sz.: 77590
Gyors kapcsolat
Virtuális látogatás
Virtuális látogatás
Opciók
Opciók
Legfontosabb adatok
Cím:
8380 Hévíz
Terület:
Lakóterület
Telek kb.:
1.125 nm;
Vételár:
144.000 €
További adatok
További adatok
Használati mód:
Lakni
Közmuvek:
Közmuvesített
Beépítheto :
beépítés a beépítési terv szerint
környék/környezet:
bevásárlási lehetőség, nyugodt környék
Részletes leírás
Részletes leírás
ingatlanleírás:
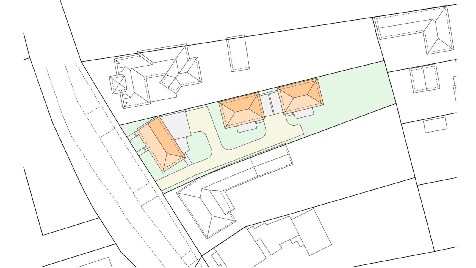
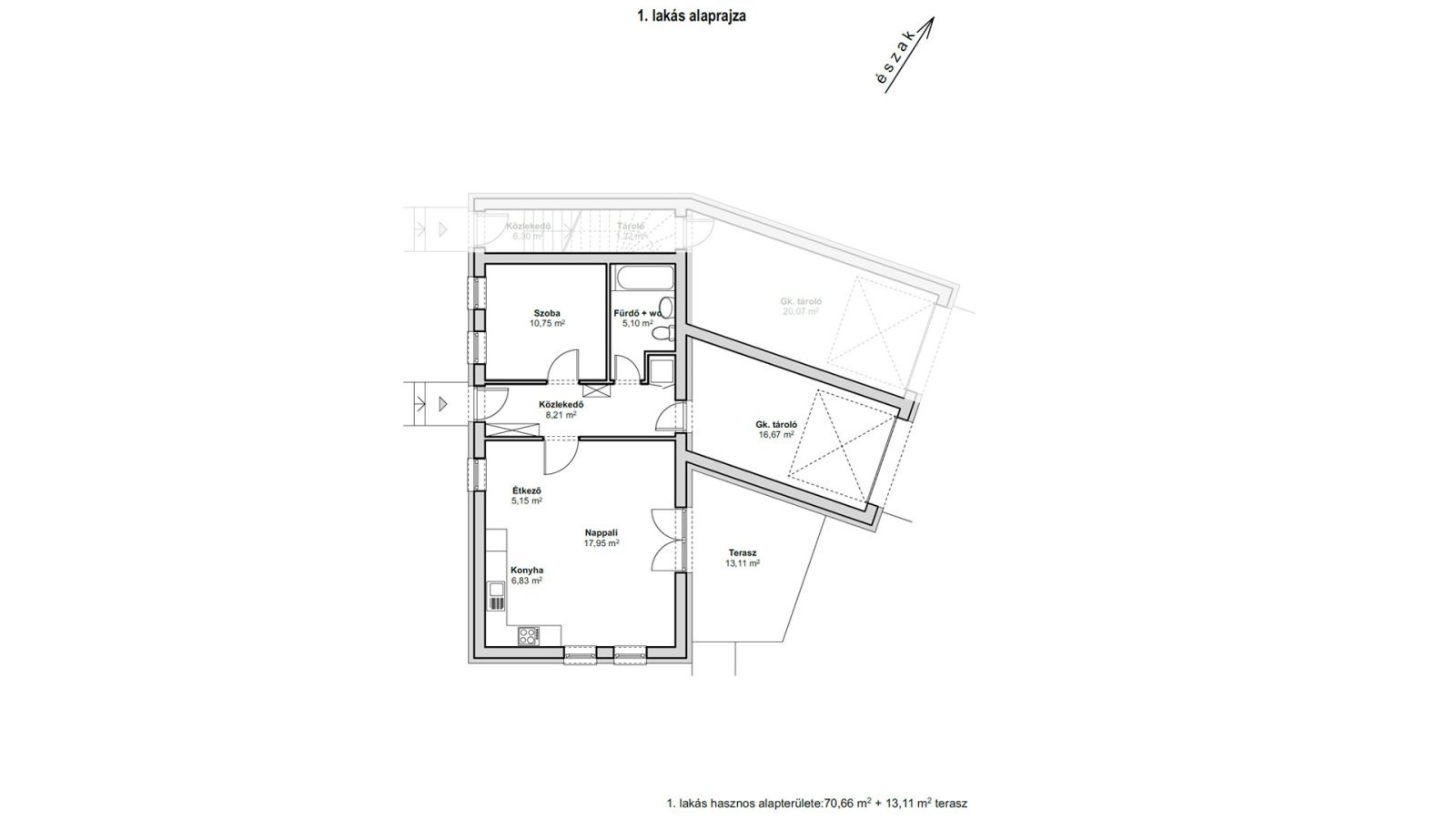
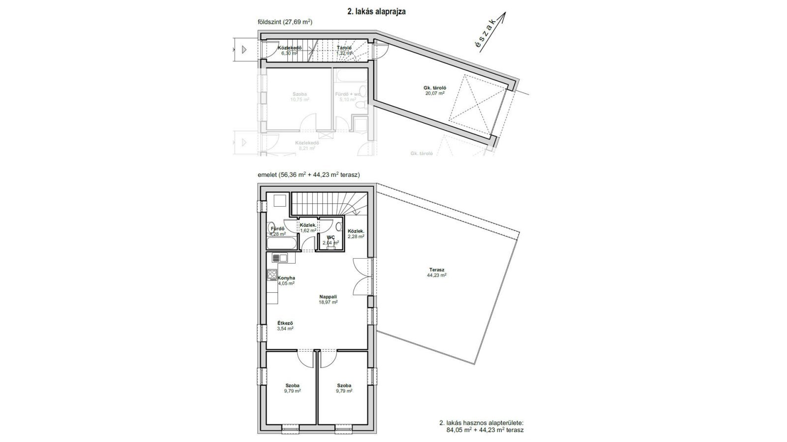
Hévíztől nyugatra, csendes helyen, beépített területen eladó egy 1125 m²-es, összközműves telek. Déli fekvésű udvarral rendelkezik, ideális egy négylakásos társasház építésére. A Magyar Lakásügyi Törvénykönyvnek megfelelő építési tervek és homlokzatok rendelkezésre állnak. A tervezett lakások külön bejárattal, garázsokkal, teraszokkal és saját kerttel, valamint 1,5-3 szobás lakóterekkel rendelkeznek.
Ház /Telek fekvése:
Hévíztől nyugatra
7,2 km-re a Balatontól
7,2 km-re a Balatontól
Egyéb:
🏡 Akár ingatlant szeretne venni, akár eladni Magyarországon, az Immocenter Hungary az Ön hozzáértő és megbízható partnere a helyszínen. Sokéves tapasztalatunkkal, kiváló piaci ismereteinkkel és személyre szabott szolgáltatásunkkal biztonságosan és átláthatóan végigvezetjük Önt a teljes vételi vagy eladási folyamaton.
💡 Tipp: Keresse egyedi A-B-C besorolásunkat ingatlanjaink nevében! A besorolás részletes magyarázatát honlapunkon találja.
✅ Ingatlan felmérése - Nyugalom vásárlás előtt
Már talált egy ingatlant, és biztos szeretne lenni abban, hogy az ár és az állapot megfelelő? Okleveles épületfelmérőnk alaposan megvizsgálja a kívánt ingatlant, és korrekt vételárat állapít meg. Így elkerülheti a költséges meglepetéseket - mivel Magyarországon általában a "látható állapotban eladó” elve érvényesül, és a későbbi hibák miatti igények nehezen érvényesíthetők.
🤝 Egyéni konzultáció - személyes, független és korrekt
Kérésre független tanácsadói szerződést köthet velünk - teljesen önkéntes és nem kötött konkrét ingatlanhoz. Szolgáltatásunk a következőket tartalmazza:
✔️ Keresési kritériumainak részletes rögzítése személyes keresési profilban
✔️ Javaslatok megfelelő ingatlanokra - amíg meg nem találja az ideális ingatlant
✔️ Közös megtekintés, beleértve az épületfelmérőnk és energetikai tanácsadónk által végzett alapos kockázatértékelést (Hévíz/Keszthely kb. 50 km-es körzetében)
✔️ Támogatás és segítségnyújtás az összes adásvételi formaság intézésében
✔️ Németül beszélő közjegyző vagy ügyvéd ajánlása
✔️ Az adásvételi szerződés német fordításának biztosítása és németül beszélő ügyvéd támogatása
✔️ Segítségnyújtás a közművek (villany, gáz, víz stb.) átruházásában
✔️ Kérésre: megbízható ingatlankezelés távollétében
🌟 Immocenter Hungary - biztonságos, hozzáértő és mindig az Ön mellett.
Reméljük, hogy személyesen is találkozhatunk Önnel, és valóra válthatjuk álmát egy saját ingatlanról Magyarországon!
💡 Tipp: Keresse egyedi A-B-C besorolásunkat ingatlanjaink nevében! A besorolás részletes magyarázatát honlapunkon találja.
✅ Ingatlan felmérése - Nyugalom vásárlás előtt
Már talált egy ingatlant, és biztos szeretne lenni abban, hogy az ár és az állapot megfelelő? Okleveles épületfelmérőnk alaposan megvizsgálja a kívánt ingatlant, és korrekt vételárat állapít meg. Így elkerülheti a költséges meglepetéseket - mivel Magyarországon általában a "látható állapotban eladó” elve érvényesül, és a későbbi hibák miatti igények nehezen érvényesíthetők.
🤝 Egyéni konzultáció - személyes, független és korrekt
Kérésre független tanácsadói szerződést köthet velünk - teljesen önkéntes és nem kötött konkrét ingatlanhoz. Szolgáltatásunk a következőket tartalmazza:
✔️ Keresési kritériumainak részletes rögzítése személyes keresési profilban
✔️ Javaslatok megfelelő ingatlanokra - amíg meg nem találja az ideális ingatlant
✔️ Közös megtekintés, beleértve az épületfelmérőnk és energetikai tanácsadónk által végzett alapos kockázatértékelést (Hévíz/Keszthely kb. 50 km-es körzetében)
✔️ Támogatás és segítségnyújtás az összes adásvételi formaság intézésében
✔️ Németül beszélő közjegyző vagy ügyvéd ajánlása
✔️ Az adásvételi szerződés német fordításának biztosítása és németül beszélő ügyvéd támogatása
✔️ Segítségnyújtás a közművek (villany, gáz, víz stb.) átruházásában
✔️ Kérésre: megbízható ingatlankezelés távollétében
🌟 Immocenter Hungary - biztonságos, hozzáértő és mindig az Ön mellett.
Reméljük, hogy személyesen is találkozhatunk Önnel, és valóra válthatjuk álmát egy saját ingatlanról Magyarországon!
Kapcsolattartó személy
Immocenter Ungarn | Hotel Consulting Meyer Kft
Úr C.Meyer REBA Immobilien AG
Pletschenstrasse 20
3952 Susten (CH)
telefonszám: +49 171 6234010
mobilszám: +43 677 62820325
Úr C.Meyer REBA Immobilien AG
Pletschenstrasse 20
3952 Susten (CH)
telefonszám: +49 171 6234010
mobilszám: +43 677 62820325
Vissza az ajánlatlistához





























