Nächstes Objekt
Vorheriges Objekt
Zurück zur ÜbersichtHévíz: (A-A) Bau-Grundstück im Westen von Héviz
Objekt-Nr.: 77590
Schnellkontakt
Virtueller Rundgang
Virtueller Rundgang
Optionen
Optionen
Basisinformationen
Adresse:
8380 Hévíz
Gebiet:
Wohngebiet
Grundstück ca.:
1.125 m²
Preis:
144.000 €
Weitere Informationen
Weitere Informationen
Nutzungsart:
Wohnen
Erschliessung:
erschlossen
Bebaubar nach:
Bebauung nach Bebauungsplan
Umgebung:
Einkaufsmöglichkeit, ruhige Gegend
Beschreibung
Beschreibung
Objektbeschreibung:
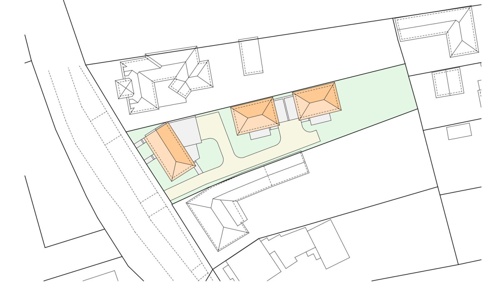
Im Westen von Hévíz, in ruhiger Lage, steht ein 1125 m² großes Grundstück mit allen Anschlüssen in einem bebauten Gebiet zum Verkauf.
Es verfügt über einen nach Süden ausgerichteten Hof und
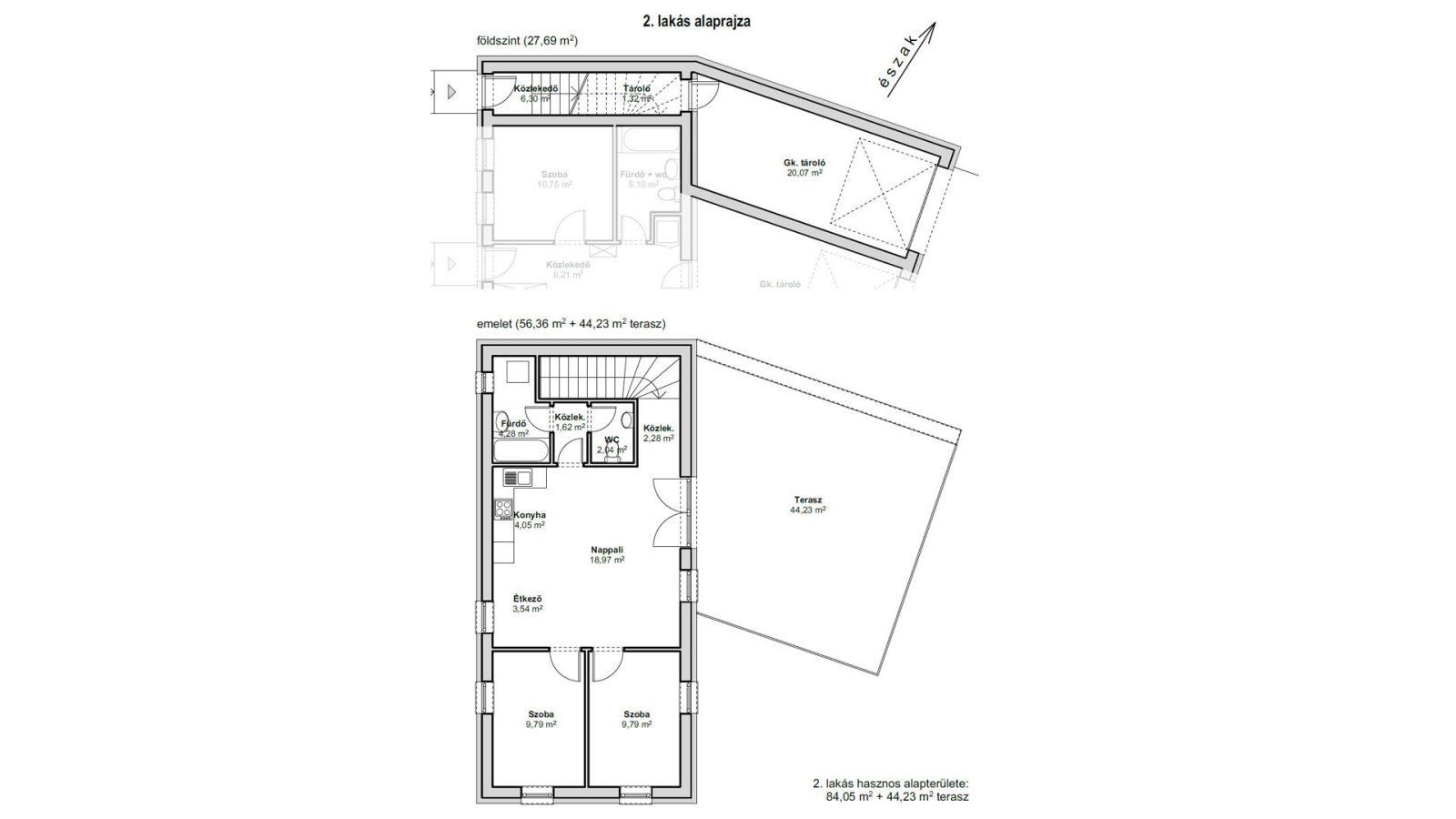
eignet sich ideal für den Bau eines Mehrfamilienhauses mit vier Wohneinheiten. Baupläne und Ansichtspläne gemäß dem ungarischen Wohnungsbaugesetz liegen vor.
Die geplanten Wohnungen bieten separate Eingänge,
Garagen, Terrassen und eigene Gartenflächen sowie
Wohnräume von 1,5 bis 3 Zimmern.
Es verfügt über einen nach Süden ausgerichteten Hof und
eignet sich ideal für den Bau eines Mehrfamilienhauses mit vier Wohneinheiten. Baupläne und Ansichtspläne gemäß dem ungarischen Wohnungsbaugesetz liegen vor.
Die geplanten Wohnungen bieten separate Eingänge,
Garagen, Terrassen und eigene Gartenflächen sowie
Wohnräume von 1,5 bis 3 Zimmern.
Lage:
Nur einen Katzensprung entfernt liegt das weltbekannte Thermalbad Hévíz mit seinem einzigartigen Heilsee - ein Highlight für alle, die Entspannung und Gesundheit verbinden möchten. Gleichzeitig ist man in wenigen Minuten am Balaton, dem "Ungarischen Meer", mit seinen Badebuchten, Segelhäfen, Ausflugsschiffen und Uferpromenaden.
Auch die Anreise ist angenehm unkompliziert:
📍 Wien: ca. 180 km - in gut 2 Stunden erreichbar
📍 Budapest: ca. 190 km - in ca. 2 bis 2,5 Stunden erreichbar
📍 Balaton (z. B. Keszthely): nur ca. 10-12 km - in 10-15 Minuten erreichbar
Auch die Anreise ist angenehm unkompliziert:
📍 Wien: ca. 180 km - in gut 2 Stunden erreichbar
📍 Budapest: ca. 190 km - in ca. 2 bis 2,5 Stunden erreichbar
📍 Balaton (z. B. Keszthely): nur ca. 10-12 km - in 10-15 Minuten erreichbar
Sonstiges:
🏡 Ganz gleich, ob Sie eine Immobilie in Ungarn kaufen möchten oder Ihre Liegenschaft verkaufen wollen: Immocenter Ungarn ist Ihr kompetenter und vertrauensvoller Partner direkt vor Ort. Mit unserer langjährigen Erfahrung, exzellenter Marktkenntnis und persönlicher Betreuung begleiten wir Sie sicher und transparent durch den gesamten Kauf- oder Verkaufsprozess.
💡 Tipp: Achten Sie auf unsere einzigartige A-B-C-Klassifizierung in der Überschrift unserer Objekte! Die Bedeutung dieser Einstufung finden Sie ausführlich erklärt auf unserer Startseite.
✅ Immobiliencheck - Sicherheit vor dem Kauf
Sie haben bereits eine Immobilie gefunden und möchten sicher sein, dass Preis und Zustand stimmen? Unser zertifizierter Bausachverständiger prüft Ihre Wunschimmobilie gründlich und bewertet den angemessenen Kaufpreis. So vermeiden Sie teure Überraschungen - denn in Ungarn gilt meist "gekauft wie gesehen", nachträgliche Mängelrügen sind kaum durchsetzbar.
🤝 Individuelle Beratung - persönlich, unabhängig und fair
Auf Wunsch können Sie mit uns einen unabhängigen Beratungsvertrag abschließen - selbstverständlich freiwillig und nicht an ein bestimmtes Objekt gebunden. Unser Service umfasst:
✔️ Detaillierte Erfassung Ihrer Suchkriterien in einem persönlichen Suchprofil
✔️ Vorschläge passender Immobilien - so lange, bis Sie Ihr Wunschobjekt gefunden haben
✔️ Gemeinsame Besichtigungen inklusive fundierter Risikoabschätzung durch unseren Bausachverständigen und Energieberater (im Umkreis von ca. 50 km um Hévíz/Keszthely)
✔️ Betreuung und Unterstützung bei der Abwicklung aller Kauf-Formalitäten
✔️ Vermittlung eines deutschsprachigen Notars oder Rechtsanwalts
✔️ Bereitstellung einer deutschen Kaufvertragsübersetzung und Begleitung durch einen deutschsprachigen Anwalt
✔️ Unterstützung bei der Ummeldung von Strom, Gas, Wasser & Co.
✔️ Auf Wunsch: zuverlässige Hausbetreuung während Ihrer Abwesenheit
🌟 Immocenter Ungarn - sicher, kompetent und immer an Ihrer Seite.
Wir freuen uns darauf, Sie persönlich kennenzulernen und Ihren Traum von einer Immobilie in Ungarn Wirklichkeit werden zu lassen!
💡 Tipp: Achten Sie auf unsere einzigartige A-B-C-Klassifizierung in der Überschrift unserer Objekte! Die Bedeutung dieser Einstufung finden Sie ausführlich erklärt auf unserer Startseite.
✅ Immobiliencheck - Sicherheit vor dem Kauf
Sie haben bereits eine Immobilie gefunden und möchten sicher sein, dass Preis und Zustand stimmen? Unser zertifizierter Bausachverständiger prüft Ihre Wunschimmobilie gründlich und bewertet den angemessenen Kaufpreis. So vermeiden Sie teure Überraschungen - denn in Ungarn gilt meist "gekauft wie gesehen", nachträgliche Mängelrügen sind kaum durchsetzbar.
🤝 Individuelle Beratung - persönlich, unabhängig und fair
Auf Wunsch können Sie mit uns einen unabhängigen Beratungsvertrag abschließen - selbstverständlich freiwillig und nicht an ein bestimmtes Objekt gebunden. Unser Service umfasst:
✔️ Detaillierte Erfassung Ihrer Suchkriterien in einem persönlichen Suchprofil
✔️ Vorschläge passender Immobilien - so lange, bis Sie Ihr Wunschobjekt gefunden haben
✔️ Gemeinsame Besichtigungen inklusive fundierter Risikoabschätzung durch unseren Bausachverständigen und Energieberater (im Umkreis von ca. 50 km um Hévíz/Keszthely)
✔️ Betreuung und Unterstützung bei der Abwicklung aller Kauf-Formalitäten
✔️ Vermittlung eines deutschsprachigen Notars oder Rechtsanwalts
✔️ Bereitstellung einer deutschen Kaufvertragsübersetzung und Begleitung durch einen deutschsprachigen Anwalt
✔️ Unterstützung bei der Ummeldung von Strom, Gas, Wasser & Co.
✔️ Auf Wunsch: zuverlässige Hausbetreuung während Ihrer Abwesenheit
🌟 Immocenter Ungarn - sicher, kompetent und immer an Ihrer Seite.
Wir freuen uns darauf, Sie persönlich kennenzulernen und Ihren Traum von einer Immobilie in Ungarn Wirklichkeit werden zu lassen!
Provision:
.
Ihr Ansprechpartner
Immocenter Ungarn | Hotel Consulting Meyer Kft
Herr C.Meyer REBA Immobilien AG
Pletschenstrasse 20
3952 Susten (CH)
Telefon: +49 171 6234010
Mobil: +43 677 62820325
Herr C.Meyer REBA Immobilien AG
Pletschenstrasse 20
3952 Susten (CH)
Telefon: +49 171 6234010
Mobil: +43 677 62820325
Zurück zur Übersicht





























