Elozo
Vissza az ajánlatlistáhozBalatonfenyves: XXX
Nyilvántartási sz.: FB4767
Gyors kapcsolat
Virtuális látogatás
Virtuális látogatás
Opciók
Opciók
Legfontosabb adatok
Cím:
8646 Balatonfenyves
Terület:
Városközpont
Vételár:
260.000 €
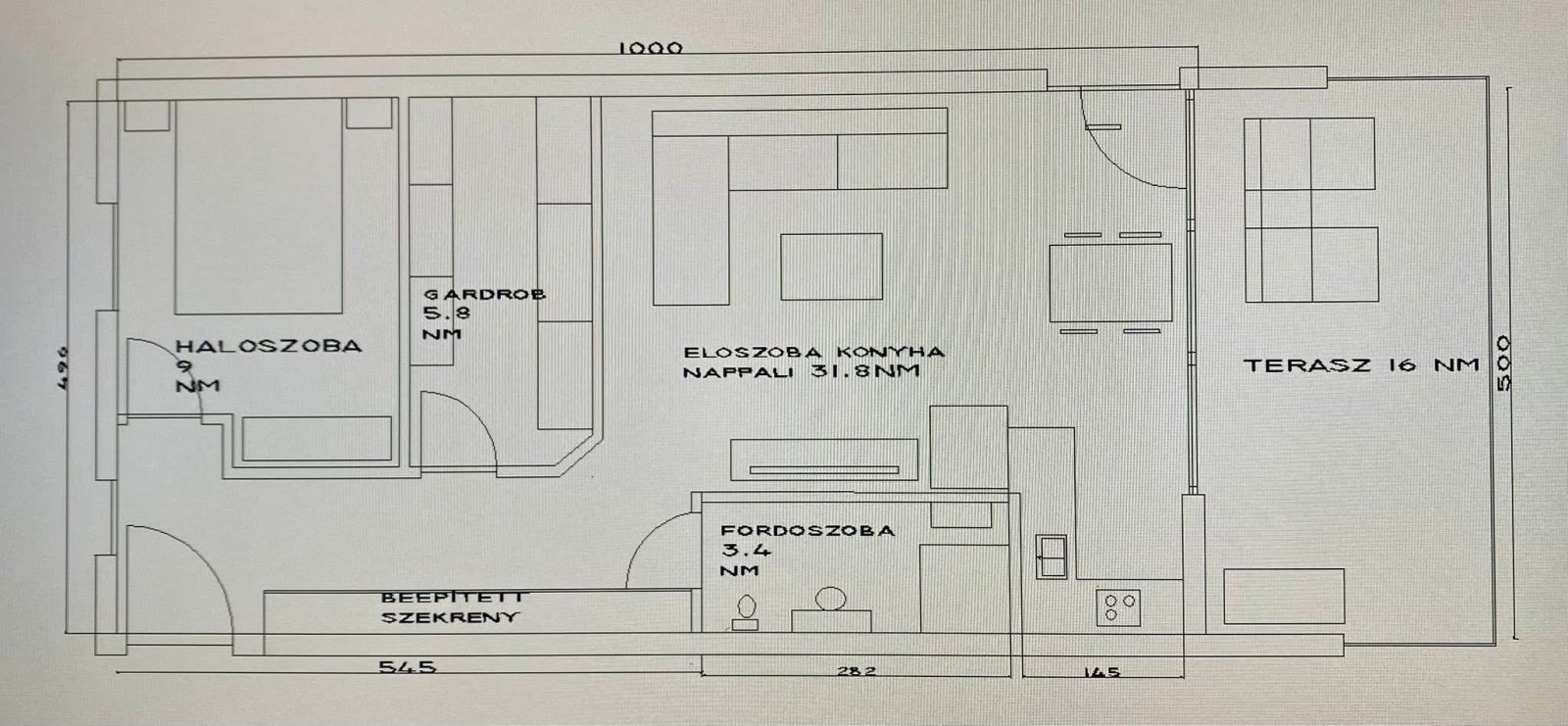
Lakóterület kb.:
50 nm;
Szobák száma:
3
További adatok
További adatok
Lakás típusa:
Apartmann
Emelet:
2
Szintek száma:
3
Jutalékköteles:
igen
Jutalék:
Vevőként Ön 2,54%-os áfát fizet az ingatlanért a s
Nem lakóterület kb.:
70 nm;
Konyha:
Beépített konyha, Nyitva
Fürdoszoba:
Zuhanyzó, Ablak
Hálószobák száma:
1
Fürdoszobák száma:
1
Terasz:
1
Pince:
igen
Légkondicionáló:
igen
parkoló helyek száma :
1 x Külso beállóhelyek
Bútorozás:
igen
Kilátás:
Kilátás a tengerre/tóra
Utolsó felújítás/ tatarozás:
2021
A berendezés minosége:
Luxus
Építés éve:
2021
Padlóburkolat:
Járólap, Parketta
Állapot:
Teljesen felújított
Futés módja:
Elektromos
Részletes leírás
Részletes leírás
ingatlanleírás:
Figyelem, balatoni és strandolók!
Eladó egy egyedi apartman a 2. emeleten.
Ez a háromszintes, lifttel felszerelt épület 2021-ben lett teljesen felújítva, és 31 apartmanból áll.
Gyönyörű, fákkal szegélyezett környezetben, egy üdülőövezetben található, közvetlenül a vízparton.
Az apartmanból lélegzetelállító panoráma nyílik a Balatonra, a Badacsonyra és a Tanuheyky-hegységre.
Élvezze a felejthetetlen kilátást a nyitott terű nappali/étkezőből konyhával és a tágas teraszról - egész évben.
Lakás jellemzői:
50 m²-es modern lakás
16 m²-es fedett, északi fekvésű panorámás terasz biztonsági üvegkorláttal
Szobák:
Nyitott terű nappali/étkező nagy üvegfronttal, beépített szekrényekkel és falburkolattal ellátott előszoba, hálószoba gardrób vagy beépített szekrény beépítési lehetőséggel, tárolóhelyiség (jelenleg polcos gardróbként működik), fürdőszoba zuhanyzóval és WC-vel, tágas fedett terasz redőnyökkel
Zárt udvar, kültéri parkolóhely közvetlenül a lakás mellett
Két bejárat: az egyik a lépcsőházon, a másik a külső lépcsőn keresztül
Nagy beépített szekrények a folyosón
Tárolóhelyiség polcokkal és ablakkal, amely szükség esetén könnyen hálószobává alakítható
Hőszigetelt, kiváló minőségű ablakok és ajtók rovarhálóval és elektromos redőnyökkel
Légkondicionálás és fűtés: A légkondicionáló és az infrapanelek optimális kényelmet biztosítanak.
Fürdőszoba törölközőmelegítővel
Melegvízellátás elektromos bojlerrel
Zárt, privát telek gyeppel, parkosított kerttel, napozóval és úszórésszel, valamint közvetlen hozzáféréssel a Balatonhoz
Beépített Wi-Fi kamera
Az ár tartalmazza a kiállított kiváló minőségű kerti és beltéri bútorokat, a beépített konyhát gépekkel, a nappaliban található hangrendszert, a nagyméretű televíziót, a faliképeket stb.
A lakás kiváló elhelyezkedésének köszönhetően a következő szolgáltatások és szabadidős tevékenységek találhatók a közvetlen közelben:
Közvetlen vízparti fekvésével és panorámás kilátásával ez a gyönyörű ház ideális nyaralónak, befektetési ingatlannak vagy állandó lakhelynek.
Az ingatlan jelenleg hagyatéki eljárás alatt áll, amely várhatóan január végén/február elején fejeződik be.
A ház az eljárás lezárása után azonnal beköltözhető.
Töltse a 2026-os szezont a balatoni parton, saját, teljesen felszerelt és berendezett házában!
... Egyszerűen költözzön be, és élvezze az álomszerű ingatlan luxusát és sokszínű szabadidős lehetőségeit.
Eladó egy egyedi apartman a 2. emeleten.
Ez a háromszintes, lifttel felszerelt épület 2021-ben lett teljesen felújítva, és 31 apartmanból áll.
Gyönyörű, fákkal szegélyezett környezetben, egy üdülőövezetben található, közvetlenül a vízparton.
Az apartmanból lélegzetelállító panoráma nyílik a Balatonra, a Badacsonyra és a Tanuheyky-hegységre.
Élvezze a felejthetetlen kilátást a nyitott terű nappali/étkezőből konyhával és a tágas teraszról - egész évben.
Lakás jellemzői:
50 m²-es modern lakás
16 m²-es fedett, északi fekvésű panorámás terasz biztonsági üvegkorláttal
Szobák:
Nyitott terű nappali/étkező nagy üvegfronttal, beépített szekrényekkel és falburkolattal ellátott előszoba, hálószoba gardrób vagy beépített szekrény beépítési lehetőséggel, tárolóhelyiség (jelenleg polcos gardróbként működik), fürdőszoba zuhanyzóval és WC-vel, tágas fedett terasz redőnyökkel
Zárt udvar, kültéri parkolóhely közvetlenül a lakás mellett
Két bejárat: az egyik a lépcsőházon, a másik a külső lépcsőn keresztül
Nagy beépített szekrények a folyosón
Tárolóhelyiség polcokkal és ablakkal, amely szükség esetén könnyen hálószobává alakítható
Hőszigetelt, kiváló minőségű ablakok és ajtók rovarhálóval és elektromos redőnyökkel
Légkondicionálás és fűtés: A légkondicionáló és az infrapanelek optimális kényelmet biztosítanak.
Fürdőszoba törölközőmelegítővel
Melegvízellátás elektromos bojlerrel
Zárt, privát telek gyeppel, parkosított kerttel, napozóval és úszórésszel, valamint közvetlen hozzáféréssel a Balatonhoz
Beépített Wi-Fi kamera
Az ár tartalmazza a kiállított kiváló minőségű kerti és beltéri bútorokat, a beépített konyhát gépekkel, a nappaliban található hangrendszert, a nagyméretű televíziót, a faliképeket stb.
A lakás kiváló elhelyezkedésének köszönhetően a következő szolgáltatások és szabadidős tevékenységek találhatók a közvetlen közelben:
Közvetlen vízparti fekvésével és panorámás kilátásával ez a gyönyörű ház ideális nyaralónak, befektetési ingatlannak vagy állandó lakhelynek.
Az ingatlan jelenleg hagyatéki eljárás alatt áll, amely várhatóan január végén/február elején fejeződik be.
A ház az eljárás lezárása után azonnal beköltözhető.
Töltse a 2026-os szezont a balatoni parton, saját, teljesen felszerelt és berendezett házában!
... Egyszerűen költözzön be, és élvezze az álomszerű ingatlan luxusát és sokszínű szabadidős lehetőségeit.
Ház /Telek fekvése:
- Éttermek, bevásárlóközpontok, mint például Aldi, Coop és szezonális üzletek
- Gyógyszertár, orvosi rendelő, fogorvos
- Iskola, óvoda, mozi
- Vasútállomás és a történelmi Kisvasút buszpályaudvar (75 éve)
- Központi strand 1 km hosszú sétánnyal, kikötővel, yachtklubbal, éttermekkel, büfékkel és fagylaltozókkal
- Számos kiépített strand
- Nagybereki Nemzeti Park 1 km
Imremajor "Majorka" 3 km
- Gyógyszertár, orvosi rendelő, fogorvos
- Iskola, óvoda, mozi
- Vasútállomás és a történelmi Kisvasút buszpályaudvar (75 éve)
- Központi strand 1 km hosszú sétánnyal, kikötővel, yachtklubbal, éttermekkel, büfékkel és fagylaltozókkal
- Számos kiépített strand
- Nagybereki Nemzeti Park 1 km
Imremajor "Majorka" 3 km
Egyéb:
Akár ingatlant szeretne venni, akár eladni Magyarországon, az Immocenter Hungary az Ön hozzáértő és megbízható partnere a helyszínen. Sokéves tapasztalatunkkal, kiváló piaci ismereteinkkel és személyre szabott szolgáltatásunkkal biztonságosan és átláthatóan végigvezetjük Önt a teljes vételi vagy eladási folyamaton.
Tipp: Keresse egyedi A-B-C besorolásunkat ingatlanjaink nevében! A besorolás részletes magyarázatát honlapunkon találja.
Ingatlan felmérése - Nyugalom vásárlás előtt
Már talált egy ingatlant, és biztos szeretne lenni abban, hogy az ár és az állapot megfelelő? Okleveles épületfelmérőnk alaposan megvizsgálja a kívánt ingatlant, és korrekt vételárat állapít meg. Így elkerülheti a költséges meglepetéseket - mivel Magyarországon általában a "látható állapotban eladó” elve érvényesül, és a későbbi hibák miatti igények nehezen érvényesíthetők.
Egyéni konzultáció - Személyes, független és korrekt
Ha szeretné, független tanácsadói szerződést köthet velünk - teljesen önkéntes alapon, és nem kötődik semmilyen konkrét ingatlanhoz. Szolgáltatásaink a következők:
- Keresési kritériumainak részletes rögzítése személyes keresési profilban
- Megfelelő ingatlanok ajánlása - amíg meg nem találja az ideális ingatlant
- Közös megtekintés, beleértve az épületfelmérőnk és energetikai tanácsadónk által végzett alapos kockázatértékelést (Hévíz/Keszthely kb. 50 km-es körzetében)
- Támogatás és segítségnyújtás minden vásárlási formaságban
- Németül beszélő közjegyző vagy ügyvéd ajánlása
- Az adásvételi szerződés német fordításának biztosítása és németül beszélő ügyvéd támogatása
- Segítségnyújtás a közművek (villany, gáz, víz stb.) átruházásában
- Kérésre: megbízható ingatlankezelés távollétében
Immocenter Hungary - biztonságos, hozzáértő és mindig az Ön mellett állunk.
Reméljük, hogy személyesen is találkozhatunk Önnel, és valóra válthatjuk álmát egy saját ingatlanról Magyarországon!
Tipp: Keresse egyedi A-B-C besorolásunkat ingatlanjaink nevében! A besorolás részletes magyarázatát honlapunkon találja.
Ingatlan felmérése - Nyugalom vásárlás előtt
Már talált egy ingatlant, és biztos szeretne lenni abban, hogy az ár és az állapot megfelelő? Okleveles épületfelmérőnk alaposan megvizsgálja a kívánt ingatlant, és korrekt vételárat állapít meg. Így elkerülheti a költséges meglepetéseket - mivel Magyarországon általában a "látható állapotban eladó” elve érvényesül, és a későbbi hibák miatti igények nehezen érvényesíthetők.
Egyéni konzultáció - Személyes, független és korrekt
Ha szeretné, független tanácsadói szerződést köthet velünk - teljesen önkéntes alapon, és nem kötődik semmilyen konkrét ingatlanhoz. Szolgáltatásaink a következők:
- Keresési kritériumainak részletes rögzítése személyes keresési profilban
- Megfelelő ingatlanok ajánlása - amíg meg nem találja az ideális ingatlant
- Közös megtekintés, beleértve az épületfelmérőnk és energetikai tanácsadónk által végzett alapos kockázatértékelést (Hévíz/Keszthely kb. 50 km-es körzetében)
- Támogatás és segítségnyújtás minden vásárlási formaságban
- Németül beszélő közjegyző vagy ügyvéd ajánlása
- Az adásvételi szerződés német fordításának biztosítása és németül beszélő ügyvéd támogatása
- Segítségnyújtás a közművek (villany, gáz, víz stb.) átruházásában
- Kérésre: megbízható ingatlankezelés távollétében
Immocenter Hungary - biztonságos, hozzáértő és mindig az Ön mellett állunk.
Reméljük, hogy személyesen is találkozhatunk Önnel, és valóra válthatjuk álmát egy saját ingatlanról Magyarországon!
Jutalék:
Vevőként Ön 2,54%-os áfát fizet az ingatlanért a számlázás és a vételi szerződés aláírásakor. Ez az ár tartalmazza:
- Az ingatlan-nyilvántartás ellenőrzése terhek és tulajdonjogok tekintetében
- Németül beszélő ügyvéd ajánlása (Magyarországon ügyvédek hitelesítik a vételi szerződéseket, nem közjegyzők, mint Németországban)
- A vételi szerződés német fordítása
- Minden közműszolgáltatás, például villany, gáz, víz, hulladékszállítás stb.
- Az ingatlan-nyilvántartás ellenőrzése terhek és tulajdonjogok tekintetében
- Németül beszélő ügyvéd ajánlása (Magyarországon ügyvédek hitelesítik a vételi szerződéseket, nem közjegyzők, mint Németországban)
- A vételi szerződés német fordítása
- Minden közműszolgáltatás, például villany, gáz, víz, hulladékszállítás stb.
Kapcsolattartó személy
Immocenter Ungarn | Hotel Consulting Meyer Kft
Úr C.Meyer REBA Immobilien AG
Pletschenstrasse 20
3952 Susten (CH)
telefonszám: +49 171 6234010
mobilszám: +43 677 62820325
Úr C.Meyer REBA Immobilien AG
Pletschenstrasse 20
3952 Susten (CH)
telefonszám: +49 171 6234010
mobilszám: +43 677 62820325
Vissza az ajánlatlistához


















