Nächstes Objekt
Vorheriges Objekt
Zurück zur ÜbersichtGyenesdiás: Gepflegtes Einfamilienhaus in Gyenesdiás
Objekt-Nr.: BIB-25069
Schnellkontakt
Virtueller Rundgang
Virtueller Rundgang
Links
Links
Optionen
Optionen
Basisinformationen
Adresse:
8215 Gyenesdiás
Preis:
369.000 €
Wohnfläche ca.:
164 m²
Grundstück ca.:
1.442 m²
Zimmeranzahl:
4
Weitere Informationen
Weitere Informationen
Haustyp:
Einfamilienhaus
Etagenanzahl:
1
Provisionspflichtig:
nein
Küche:
Einbauküche
Bad:
Dusche, Wanne
Anzahl Schlafzimmer:
2
Anzahl Badezimmer:
2
Terrasse:
1
Garten:
ja
Kamin:
ja
Klimaanlage:
ja
Anzahl der Parkflächen:
1 x Garage
Qualität der Ausstattung:
normal
Bauphase:
Haus fertig gestellt
Verfügbar ab:
Nach VB
Bodenbelag:
Fliesen, Teppichboden
Zustand:
gepflegt
Heizung:
Fußboden, Zentralheizung
Befeuerungsart:
Gas
Beschreibung
Beschreibung
Objektbeschreibung:
Zum Verkauf haben wir hier ein gepflegtes Einfamilienhaus in Gyenesdiás
-
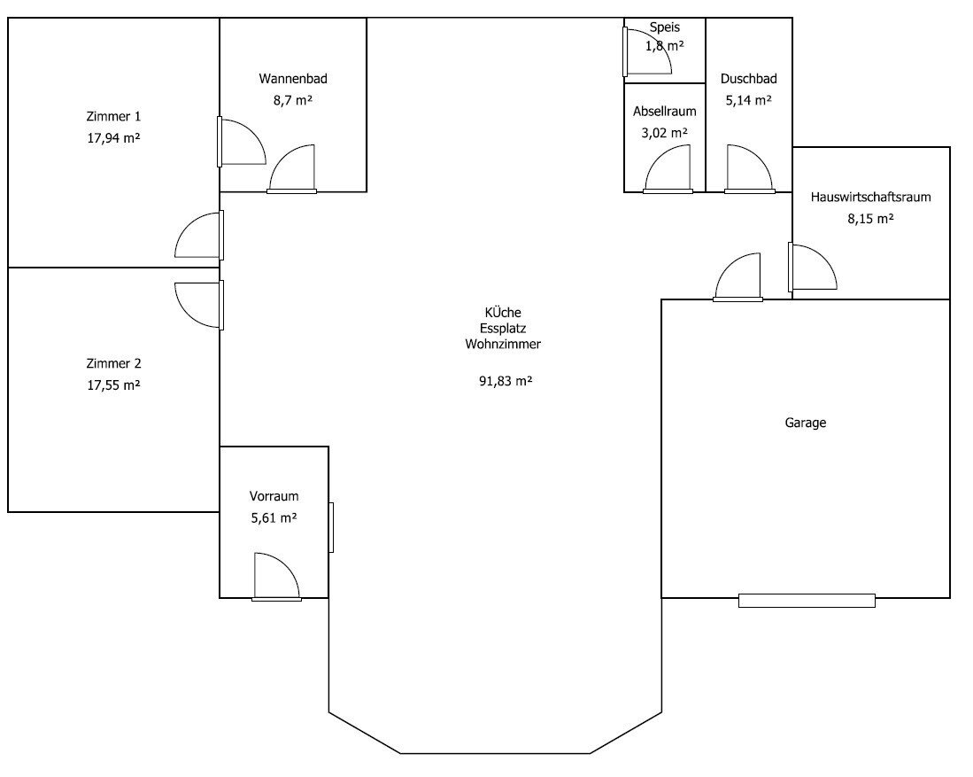
Das Haus kommt mit ca. 164 m² Wohnfläche die sich auf den Eingang, einem Vorraum mit Garderobe, einer Wohnküche mit Essplatz, einer Speisekammer, zwei Schlafzimmern, einem Wannenbad, einem Duschbad, einem Abstellraum sowie einem Hauswirtschaftsraum und einer Garage aufteilt.
Das Objekt kommt mit diversen Extras wie einem Kachelofen, einer Klimmaanlage im Hauptschlafzimmer und einem elektrischen Einfahrts- und Garagentor.
SaT TV ist ebenfalls installiert - Die Immobilie ist komplett Vollisoliert - Das Dach ist ebenfalls ausbaubar.
Auf der Terrasse mit Markise lassen sich schöne Sommertage und Abende im Freien verbringen.
-
Das Grundstück hat ca. 1442 m² auf dem des Weiteren drei Regenwasserzisternen, zwei Holzschuppen und ein 40 Meter tiefer Brunnen steht.
Ein besonderes Highlight hier ist der Teich.
-
Die Immobilie steht in einer sehr schönen Ortschaft, Gyenesdiás, die alles bietet was man für das tägliche Leben benötigt. Gyenesdiás ist der Vorort zur Stadt Keszthely wo Sie nicht nur alles für das tägliche Leben finden sondern auch darüber hinaus. Viele Geschäfte die man aus Deutschland gewohnt ist wie zb. Obi, Müller, Aldi, Lidl, Penny, Kik und viele Weitere sind hier vorhanden. Das Haus ist ruhig und doch zentral gelegen.
An den Balaton brauchen Sie nur wenige Minute mit dem Auto - In die Thermalbadestadt Hévíz brauchen Sie ca. 10 Minuten.
-
Das Haus kommt mit ca. 164 m² Wohnfläche die sich auf den Eingang, einem Vorraum mit Garderobe, einer Wohnküche mit Essplatz, einer Speisekammer, zwei Schlafzimmern, einem Wannenbad, einem Duschbad, einem Abstellraum sowie einem Hauswirtschaftsraum und einer Garage aufteilt.
Das Objekt kommt mit diversen Extras wie einem Kachelofen, einer Klimmaanlage im Hauptschlafzimmer und einem elektrischen Einfahrts- und Garagentor.
SaT TV ist ebenfalls installiert - Die Immobilie ist komplett Vollisoliert - Das Dach ist ebenfalls ausbaubar.
Auf der Terrasse mit Markise lassen sich schöne Sommertage und Abende im Freien verbringen.
-
Das Grundstück hat ca. 1442 m² auf dem des Weiteren drei Regenwasserzisternen, zwei Holzschuppen und ein 40 Meter tiefer Brunnen steht.
Ein besonderes Highlight hier ist der Teich.
-
Die Immobilie steht in einer sehr schönen Ortschaft, Gyenesdiás, die alles bietet was man für das tägliche Leben benötigt. Gyenesdiás ist der Vorort zur Stadt Keszthely wo Sie nicht nur alles für das tägliche Leben finden sondern auch darüber hinaus. Viele Geschäfte die man aus Deutschland gewohnt ist wie zb. Obi, Müller, Aldi, Lidl, Penny, Kik und viele Weitere sind hier vorhanden. Das Haus ist ruhig und doch zentral gelegen.
An den Balaton brauchen Sie nur wenige Minute mit dem Auto - In die Thermalbadestadt Hévíz brauchen Sie ca. 10 Minuten.
Ausstattung:
Strom – Wasser – Kanal – Gaszentralheizung – Fußbodenheizung – Kachelofen – Klimaanlage im Hauptschlafzimmer – Sat TV – Fliesen – Teppichböden –
Terrasse mit Markise – elektrisches Einfahrtstor – elektrisches Garagentor –
Brunnen 40m tief – drei Regenwasserzisternen – zwei Holzschuppen –
Abstellraum – Teich im Garten
– Vollisoliert –
– Dachgeschoss ausbaubar –
Terrasse mit Markise – elektrisches Einfahrtstor – elektrisches Garagentor –
Brunnen 40m tief – drei Regenwasserzisternen – zwei Holzschuppen –
Abstellraum – Teich im Garten
– Vollisoliert –
– Dachgeschoss ausbaubar –
Lage:
Die meisten unserer Objekte befinden sich in Zala und Somogy zwischen 10- und 50 km vom Balaton.
In der Regel sind die preiswerteren Immobilien weiter vom Balaton entfernt.
Bitte kontaktieren Sie uns für Infos zur genauen Lage des Objekts, wir helfen Ihnen gerne weiter.
In der Regel sind die preiswerteren Immobilien weiter vom Balaton entfernt.
Bitte kontaktieren Sie uns für Infos zur genauen Lage des Objekts, wir helfen Ihnen gerne weiter.
Sonstiges:
Balaton Immobilien Nr. 1 Kft.
Idler Christopher
Faludi utca 7/1
H-8315 Gyenesdiás
-
Büro: 0036 83 510 197 (deutsch/ungarisch)
Mobil: 0036 30 153 73 82 (deutsch)
-
E-Mail: balaton.immobilien.eu@gmail.com
-
Maklerlizensnummer: PTG 094439
Steuernummer: 14979039-1-20
Eingetragen beim Amtsgericht in Keszthely
-
Weitere Angebote finden Sie unter: http://www.balaton-immobilien.eu/
---
- alle Angaben lt. Auftraggeber
- alle Maße sind ca. Angaben
- sofern keine Angaben zu Energieverbrauch angegeben sind, sind die Energieausweise in Arbeit und die Angaben werden sofort nachgereicht
- Irrtum vorbehalten
- Bildmaterial und Exposétext ist urheberrechtlich geschützt
- zwischenzeitlicher Verkauf oder Aufgabe der Verkaufsabsicht bleiben vorbehalten
- es gelten unsere Allgemeinen Geschäftsbedingungen
- Widerrufsbelehrung bei provisionspflichtigen Angeboten
---
Sie wollen auch unseren umfangreichen Service nutzen? Dann rufen Sie uns einfach an oder schicken uns eine Mail.
Idler Christopher
Faludi utca 7/1
H-8315 Gyenesdiás
-
Büro: 0036 83 510 197 (deutsch/ungarisch)
Mobil: 0036 30 153 73 82 (deutsch)
-
E-Mail: balaton.immobilien.eu@gmail.com
-
Maklerlizensnummer: PTG 094439
Steuernummer: 14979039-1-20
Eingetragen beim Amtsgericht in Keszthely
-
Weitere Angebote finden Sie unter: http://www.balaton-immobilien.eu/
---
- alle Angaben lt. Auftraggeber
- alle Maße sind ca. Angaben
- sofern keine Angaben zu Energieverbrauch angegeben sind, sind die Energieausweise in Arbeit und die Angaben werden sofort nachgereicht
- Irrtum vorbehalten
- Bildmaterial und Exposétext ist urheberrechtlich geschützt
- zwischenzeitlicher Verkauf oder Aufgabe der Verkaufsabsicht bleiben vorbehalten
- es gelten unsere Allgemeinen Geschäftsbedingungen
- Widerrufsbelehrung bei provisionspflichtigen Angeboten
---
Sie wollen auch unseren umfangreichen Service nutzen? Dann rufen Sie uns einfach an oder schicken uns eine Mail.
Provision:
Provisionsfrei
-
Inklusiver aller Um- und Anmeldungen von Wasser, Strom, Gas und Müll.
Die Begleitung zur Bank, Versicherung sowie die Hilfe zum Bekommen der Wohnkarte.
-
Inklusiver aller Um- und Anmeldungen von Wasser, Strom, Gas und Müll.
Die Begleitung zur Bank, Versicherung sowie die Hilfe zum Bekommen der Wohnkarte.
Ihr Ansprechpartner
Firma Balaton Immobilien Nr.1 Kft
Faludi utca 7/1.
8315 Gyenesdiás
Telefon: 0036 (83) 510-197
Büro: 0036 (30) 153 73 82
Mobil: 0036 (70) 212 1773
Faludi utca 7/1.
8315 Gyenesdiás
Telefon: 0036 (83) 510-197
Büro: 0036 (30) 153 73 82
Mobil: 0036 (70) 212 1773
Zurück zur Übersicht

















