Nächstes Objekt
Vorheriges Objekt
Zurück zur ÜbersichtKehidakustány: (AAA) Neuwertige Wohnung im Kurort mit Panoramablick / Erdgeschoss
Objekt-Nr.: KK007
Schnellkontakt
Virtueller Rundgang
Virtueller Rundgang
Optionen
Optionen
Basisinformationen
Adresse:
8784 Kehidakustány
Gebiet:
Wohngebiet
Preis:
153.000 €
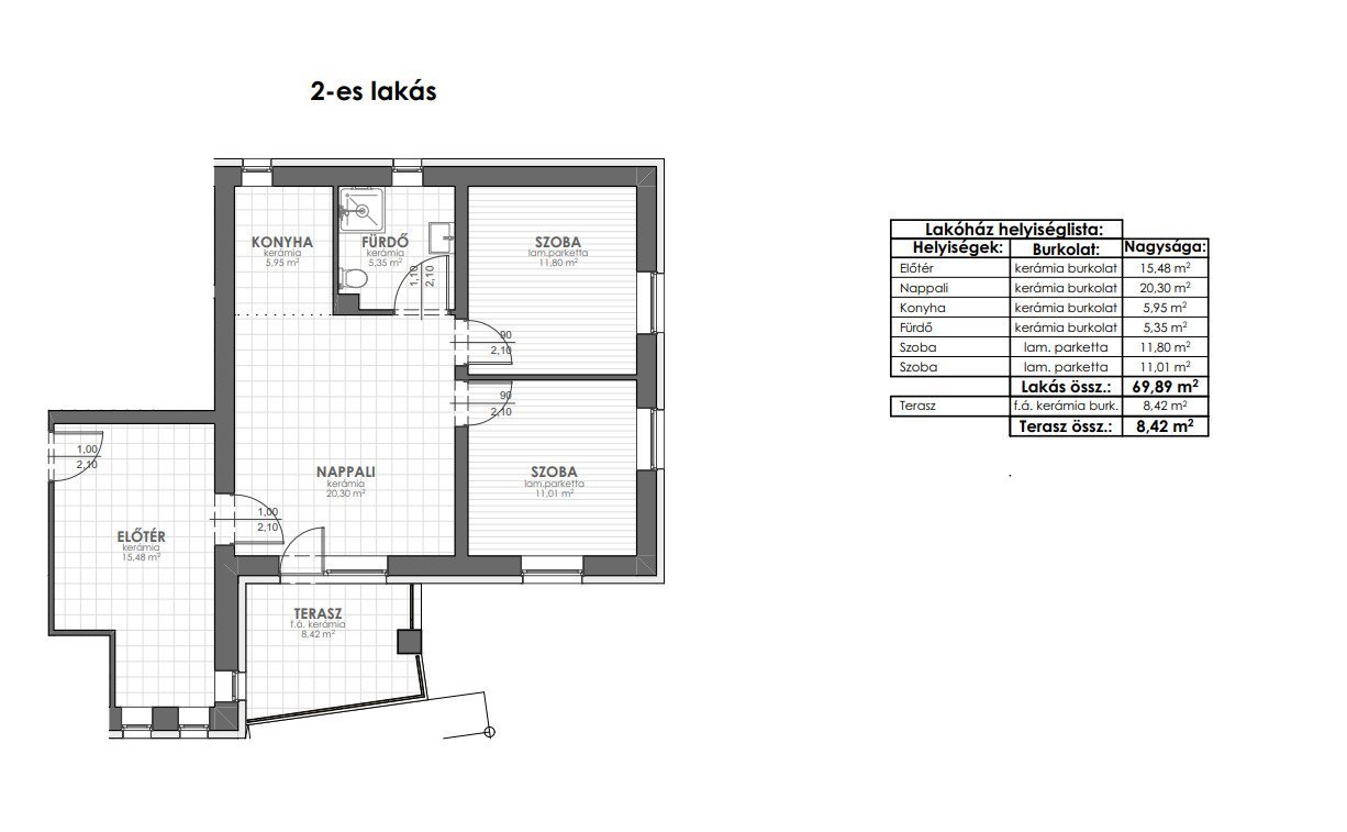
Wohnfläche ca.:
70 m²
Zimmeranzahl:
2,5
Weitere Informationen
Weitere Informationen
Haustyp:
Apartmenthaus
Etagenanzahl:
2
Provisionspflichtig:
ja
Provision:
1,27 % des Kaufpreises inkl. MwSt
Küche:
Einbauküche
Bad:
Dusche, Fenster, Bidet
Anzahl Schlafzimmer:
2
Anzahl Badezimmer:
1
Balkon:
1
Seniorengerecht:
ja
Keller:
voll unterkellert
Anzahl der Parkflächen:
1 x Außenstellplatz
Möbliert:
Teilmöbliert
Ausblick:
Fernblick
Letzte Modernisierung/ Sanierung:
2025
Bodenbelag:
Fliesen, Parkett
Zustand:
gepflegt
Heizung:
Zentralheizung, Fußboden
Befeuerungsart:
Gas
Beschreibung
Beschreibung
Objektbeschreibung:
In Kehidakustány, Komitat Zala, vermieten wir in unserem 4-Familien-Apartmenthaus geräumige, helle, neu gebaute Wohnhäuser in unmittelbarer Nähe des Flusses Zala und des Radwegs.
Das Anwesen liegt in einer wunderschön angelegten, ruhigen Umgebung. In einem Gebiet mit vollständiger öffentlicher Versorgung und asphaltiertem Straßennetz.
Der Energieverbrauch der möblierten Wohnungen wird für jede Wohneinheit separat gemessen, verfügt über unabhängige Hauptzähler und ist äußerst sparsam.
Zu jeder Wohnung schenken wir einen Stellplatz im Wert von 3.000.000 FT. Das Parken von Fahrzeugen ist auf oberirdischen Parkplätzen kostenlos möglich. Die Wohnungen sind voll möbliert, verfügen über mechanisierte Küchen und Möbel und sind sofort bezugsfertig.
Mann kann zu jeder Wohnung einen Abstellraum erwerben, der 400.000 FT/NM kostet.
Die Wohnanlage ist hochwertig gebaut. Die Heizung erfolgt über eine Fußbodenheizung mit einem Gas-Brennwertkessel. Jede Wohnung ist mit einer 3,5-kW-Klimaanlage ausgestattet. Die 15 cm starke Graphit-Außendämmung und die Solarkollektoren sorgen für eine optimale Warmwasserversorgung. Jede Wohneinheit verfügt über einen eigenen Zähler.
Die Sicherheit des Apartmenthauses wird durch ein Alarm- und Kamerasystem gewährleistet. Die Tore verfügen über ein kabelloses, motorisiertes oder sogar ferngesteuertes Öffnungssystem. Für weitere Informationen rufen Sie uns bitte an!
Das Anwesen liegt in einer wunderschön angelegten, ruhigen Umgebung. In einem Gebiet mit vollständiger öffentlicher Versorgung und asphaltiertem Straßennetz.
Der Energieverbrauch der möblierten Wohnungen wird für jede Wohneinheit separat gemessen, verfügt über unabhängige Hauptzähler und ist äußerst sparsam.
Zu jeder Wohnung schenken wir einen Stellplatz im Wert von 3.000.000 FT. Das Parken von Fahrzeugen ist auf oberirdischen Parkplätzen kostenlos möglich. Die Wohnungen sind voll möbliert, verfügen über mechanisierte Küchen und Möbel und sind sofort bezugsfertig.
Mann kann zu jeder Wohnung einen Abstellraum erwerben, der 400.000 FT/NM kostet.
Die Wohnanlage ist hochwertig gebaut. Die Heizung erfolgt über eine Fußbodenheizung mit einem Gas-Brennwertkessel. Jede Wohnung ist mit einer 3,5-kW-Klimaanlage ausgestattet. Die 15 cm starke Graphit-Außendämmung und die Solarkollektoren sorgen für eine optimale Warmwasserversorgung. Jede Wohneinheit verfügt über einen eigenen Zähler.
Die Sicherheit des Apartmenthauses wird durch ein Alarm- und Kamerasystem gewährleistet. Die Tore verfügen über ein kabelloses, motorisiertes oder sogar ferngesteuertes Öffnungssystem. Für weitere Informationen rufen Sie uns bitte an!
Ausstattung:
Alle Anschlüsse vorhanden
Lage:
Kehidakustány - Thermenidylle im Zala-Tal, ganz nah am Balaton
Kehidakustány ist berühmt für sein Kehida Termál Heil- & Erlebnisbad: ein weitläufiges Thermal-Resort mit Innen-/Außenbecken, Rutschen und Saunawelt - ideal für Wellness, Familien und Ganzjahresbadetag.
Im Ort erinnert die Deák-Ferenc-Kúria an den "Weisen der Nation" - ein kleines, stimmungsvolles Museum in historischer Anlage.
kehidakustany.hu
Entfernungen (Auto, ca.)
Keszthely (Balaton): ~21 km / ~25 Min. (über Zalaapáti/Zalacsány).
Budapest: ~205 km / ~2-2½ Std. über M7.
Wien: ~185-190 km / ~2½-3 Std. (A3 → Grenzübergang, weiter Richtung Sárvár/Zala).
Kehidakustány ist berühmt für sein Kehida Termál Heil- & Erlebnisbad: ein weitläufiges Thermal-Resort mit Innen-/Außenbecken, Rutschen und Saunawelt - ideal für Wellness, Familien und Ganzjahresbadetag.
Im Ort erinnert die Deák-Ferenc-Kúria an den "Weisen der Nation" - ein kleines, stimmungsvolles Museum in historischer Anlage.
kehidakustany.hu
Entfernungen (Auto, ca.)
Keszthely (Balaton): ~21 km / ~25 Min. (über Zalaapáti/Zalacsány).
Budapest: ~205 km / ~2-2½ Std. über M7.
Wien: ~185-190 km / ~2½-3 Std. (A3 → Grenzübergang, weiter Richtung Sárvár/Zala).
Sonstiges:
🏡 Ganz gleich, ob Sie eine Immobilie in Ungarn kaufen möchten oder Ihre Liegenschaft verkaufen wollen: Immocenter Ungarn ist Ihr kompetenter und vertrauensvoller Partner direkt vor Ort. Mit unserer langjährigen Erfahrung, exzellenter Marktkenntnis und persönlicher Betreuung begleiten wir Sie sicher und transparent durch den gesamten Kauf- oder Verkaufsprozess.
💡 Tipp: Achten Sie auf unsere einzigartige A-B-C-Klassifizierung in der Überschrift unserer Objekte! Die Bedeutung dieser Einstufung finden Sie ausführlich erklärt auf unserer Startseite.
✅ Immobiliencheck - Sicherheit vor dem Kauf
Sie haben bereits eine Immobilie gefunden und möchten sicher sein, dass Preis und Zustand stimmen? Unser zertifizierter Bausachverständiger prüft Ihre Wunschimmobilie gründlich und bewertet den angemessenen Kaufpreis. So vermeiden Sie teure Überraschungen - denn in Ungarn gilt meist "gekauft wie gesehen", nachträgliche Mängelrügen sind kaum durchsetzbar.
🤝 Individuelle Beratung - persönlich, unabhängig und fair
Auf Wunsch können Sie mit uns einen unabhängigen Beratungsvertrag abschließen - selbstverständlich freiwillig und nicht an ein bestimmtes Objekt gebunden. Unser Service umfasst:
✔️ Detaillierte Erfassung Ihrer Suchkriterien in einem persönlichen Suchprofil
✔️ Vorschläge passender Immobilien - so lange, bis Sie Ihr Wunschobjekt gefunden haben
✔️ Gemeinsame Besichtigungen inklusive fundierter Risikoabschätzung durch unseren Bausachverständigen und Energieberater (im Umkreis von ca. 50 km um Hévíz/Keszthely)
✔️ Betreuung und Unterstützung bei der Abwicklung aller Kauf-Formalitäten
✔️ Vermittlung eines deutschsprachigen Notars oder Rechtsanwalts
✔️ Bereitstellung einer deutschen Kaufvertragsübersetzung und Begleitung durch einen deutschsprachigen Anwalt
✔️ Unterstützung bei der Ummeldung von Strom, Gas, Wasser & Co.
✔️ Auf Wunsch: zuverlässige Hausbetreuung während Ihrer Abwesenheit
🌟 Immocenter Ungarn - sicher, kompetent und immer an Ihrer Seite.
Wir freuen uns darauf, Sie persönlich kennenzulernen und Ihren Traum von einer Immobilie in Ungarn Wirklichkeit werden zu lassen!
💡 Tipp: Achten Sie auf unsere einzigartige A-B-C-Klassifizierung in der Überschrift unserer Objekte! Die Bedeutung dieser Einstufung finden Sie ausführlich erklärt auf unserer Startseite.
✅ Immobiliencheck - Sicherheit vor dem Kauf
Sie haben bereits eine Immobilie gefunden und möchten sicher sein, dass Preis und Zustand stimmen? Unser zertifizierter Bausachverständiger prüft Ihre Wunschimmobilie gründlich und bewertet den angemessenen Kaufpreis. So vermeiden Sie teure Überraschungen - denn in Ungarn gilt meist "gekauft wie gesehen", nachträgliche Mängelrügen sind kaum durchsetzbar.
🤝 Individuelle Beratung - persönlich, unabhängig und fair
Auf Wunsch können Sie mit uns einen unabhängigen Beratungsvertrag abschließen - selbstverständlich freiwillig und nicht an ein bestimmtes Objekt gebunden. Unser Service umfasst:
✔️ Detaillierte Erfassung Ihrer Suchkriterien in einem persönlichen Suchprofil
✔️ Vorschläge passender Immobilien - so lange, bis Sie Ihr Wunschobjekt gefunden haben
✔️ Gemeinsame Besichtigungen inklusive fundierter Risikoabschätzung durch unseren Bausachverständigen und Energieberater (im Umkreis von ca. 50 km um Hévíz/Keszthely)
✔️ Betreuung und Unterstützung bei der Abwicklung aller Kauf-Formalitäten
✔️ Vermittlung eines deutschsprachigen Notars oder Rechtsanwalts
✔️ Bereitstellung einer deutschen Kaufvertragsübersetzung und Begleitung durch einen deutschsprachigen Anwalt
✔️ Unterstützung bei der Ummeldung von Strom, Gas, Wasser & Co.
✔️ Auf Wunsch: zuverlässige Hausbetreuung während Ihrer Abwesenheit
🌟 Immocenter Ungarn - sicher, kompetent und immer an Ihrer Seite.
Wir freuen uns darauf, Sie persönlich kennenzulernen und Ihren Traum von einer Immobilie in Ungarn Wirklichkeit werden zu lassen!
Provision:
.
Ihr Ansprechpartner
Immocenter Ungarn | Hotel Consulting Meyer Kft
Herr hcm Meyer
Postfach 32
8394 Alsópáhok | Hévíz
Telefon: 0036 20 981 0600 (DE,EN)
Herr hcm Meyer
Postfach 32
8394 Alsópáhok | Hévíz
Telefon: 0036 20 981 0600 (DE,EN)
Zurück zur Übersicht






















