Vorheriges Objekt
Zurück zur Übersichtbei Marcali: (AAA) Liebevoll renoviertes Landhaus mit Pool bei Marcali
Objekt-Nr.: CM247
Schnellkontakt
Virtueller Rundgang
Virtueller Rundgang
Optionen
Optionen
Basisinformationen
Adresse:
8733 bei Marcali
Gebiet:
Wohngebiet
Preis:
199.500 €
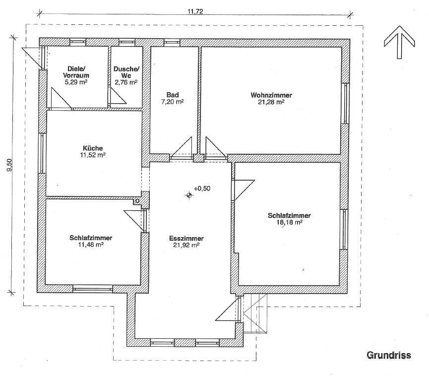
Wohnfläche ca.:
100 m²
Grundstück ca.:
537 m²
Zimmeranzahl:
4
Weitere Informationen
Weitere Informationen
Haustyp:
Landhaus
Küche:
Einbauküche, offen
Bad:
Dusche, Fenster
Anzahl Schlafzimmer:
2
Anzahl Badezimmer:
1
Terrasse:
1
Keller:
teil unterkellert
Klimaanlage:
ja
Als Ferienhaus geeignet:
ja
Anzahl der Parkflächen:
1 x Carport
Möbliert:
Teilmöbliert
Letzte Modernisierung/ Sanierung:
2010
Baujahr:
1970
Zustand:
vollsaniert
Heizung:
Zentralheizung
Befeuerungsart:
Gas
Beschreibung
Beschreibung
Objektbeschreibung:
Willkommen im charmanten Einzugsgebiet von Marcali im Komitat Somogy - hier erwartet Sie ein liebevoll renoviertes Landhaus mit Außenpool, das sich perfekt als neues Zuhause für Ihren Lebensabschnitt in Ungarn eignet.
Diese Immobilie entwickelt sich zur idealen Wahl für Auswanderer, die Ruhe, Komfort und eine gepflegte Wohnlage verbinden möchten.
Eckdaten im Überblick:
Immobilienart: Landhaus - Zustand: renoviert, bezugsfertig und mit modernem Wohnkomfort.
Außenbereich: Pool vorhanden - luxuriöses Extra für den Sommer an einem angenehmen Wohnort.
Wohnfläche & Grundstück: ca. 100 m²
Besonderheiten: Modernisierte Ausstattung, attraktive Außenbereiche, Wohlfühlcharakter und hohe Lebensqualität.
Nutzung: Ideal zur Eigennutzung als Wohnsitz in Ungarn oder als Zweitwohnsitz - mit privater und komfortabler Atmosphäre.
Ihre Vorteile als Auswanderer:
Bezugsfertiges Heim: Dank Renovierung können Sie zeitnah einziehen und sich direkt wohlfühlen - ohne großen Renovierungsaufwand.
Attraktiver Außenpool: Perfekt für warme Tage, Gäste oder auch zur Vermietung - erhöht Lebensqualität und Wertigkeit.
Ruhige Wohnlage mit guter Infrastruktur: Ideale Kombination aus Natur und Erreichbarkeit - genau das, was viele Auswanderer suchen.
Langfristiger Wohnsitz in Ungarn: Für Sie als Auswanderer bietet dieses Haus eine solide Basis für Leben, Familie oder Rückzugsort mit Stil und Charakter.
Grundstücksgröße 5.357 qm (Offiziell vermessen)
Der obere Teil des Grundstücks mit einer Größe von ca. 900 qm ist komplett eingezäunt und somit auch für Hunde geeignent
Gebäude Baujahr ca. 1970
Kernsaniert zwischen 2005 und 2010
Fortlaufend bis heute renoviert
Keine Feuchteschäden oder Risse!
Wohnfläche ca. 100 qm zzgl. Nebengebäude
Teilkeller
Wintergarten, unbeheizt
4 Zimmer, Küche, Bad mit Wanne und Dusche, Gäste WC mit Dusche
Kunststofffenster mit Rollläden und Insektenschutz
Carport mit Stromanschluss, geeignet für ein Wohnmobil
- Pool mit Überdachung
- Grillpavillion mit Sommerküche
- Gas-Zentralheizung
- Klimageräte im Wohn- und Schlafzimmer
- Kaminofen
- Brunnen
- SAT-Anlage mit einer Vielzahl von deutschen Sendern
- Entkalkungsanlage für Trinkwasser
- Automatisches Zufahrtstor
- Angrenzender Akazienwald zur eigenen Brennholzversorgung
- Bei Bedarf kann das angrenzende Grundstück mit einer Größe von 3.724 qm, z.B. für Pferde oder Nutztierhaltung, zusätzlich erworben werden.
Diese Immobilie entwickelt sich zur idealen Wahl für Auswanderer, die Ruhe, Komfort und eine gepflegte Wohnlage verbinden möchten.
Eckdaten im Überblick:
Immobilienart: Landhaus - Zustand: renoviert, bezugsfertig und mit modernem Wohnkomfort.
Außenbereich: Pool vorhanden - luxuriöses Extra für den Sommer an einem angenehmen Wohnort.
Wohnfläche & Grundstück: ca. 100 m²
Besonderheiten: Modernisierte Ausstattung, attraktive Außenbereiche, Wohlfühlcharakter und hohe Lebensqualität.
Nutzung: Ideal zur Eigennutzung als Wohnsitz in Ungarn oder als Zweitwohnsitz - mit privater und komfortabler Atmosphäre.
Ihre Vorteile als Auswanderer:
Bezugsfertiges Heim: Dank Renovierung können Sie zeitnah einziehen und sich direkt wohlfühlen - ohne großen Renovierungsaufwand.
Attraktiver Außenpool: Perfekt für warme Tage, Gäste oder auch zur Vermietung - erhöht Lebensqualität und Wertigkeit.
Ruhige Wohnlage mit guter Infrastruktur: Ideale Kombination aus Natur und Erreichbarkeit - genau das, was viele Auswanderer suchen.
Langfristiger Wohnsitz in Ungarn: Für Sie als Auswanderer bietet dieses Haus eine solide Basis für Leben, Familie oder Rückzugsort mit Stil und Charakter.
Grundstücksgröße 5.357 qm (Offiziell vermessen)
Der obere Teil des Grundstücks mit einer Größe von ca. 900 qm ist komplett eingezäunt und somit auch für Hunde geeignent
Gebäude Baujahr ca. 1970
Kernsaniert zwischen 2005 und 2010
Fortlaufend bis heute renoviert
Keine Feuchteschäden oder Risse!
Wohnfläche ca. 100 qm zzgl. Nebengebäude
Teilkeller
Wintergarten, unbeheizt
4 Zimmer, Küche, Bad mit Wanne und Dusche, Gäste WC mit Dusche
Kunststofffenster mit Rollläden und Insektenschutz
Carport mit Stromanschluss, geeignet für ein Wohnmobil
- Pool mit Überdachung
- Grillpavillion mit Sommerküche
- Gas-Zentralheizung
- Klimageräte im Wohn- und Schlafzimmer
- Kaminofen
- Brunnen
- SAT-Anlage mit einer Vielzahl von deutschen Sendern
- Entkalkungsanlage für Trinkwasser
- Automatisches Zufahrtstor
- Angrenzender Akazienwald zur eigenen Brennholzversorgung
- Bei Bedarf kann das angrenzende Grundstück mit einer Größe von 3.724 qm, z.B. für Pferde oder Nutztierhaltung, zusätzlich erworben werden.
Ausstattung:
Alle Anschlüsse vorhanden
Lage:
Marcali - die ruhige Thermal- und Kulturstadt nahe dem Südbalaton
Marcali liegt im Komitat Somogy, nur wenige Kilometer südlich des Balaton, und ist eine charmante Kleinstadt, die Erholung, Kultur und Natur auf sehr angenehme Weise verbindet. Wer eine entspannte Alternative zu den lebhaften Balaton-Orten sucht, findet hier genau die richtige Mischung aus Ruhe, ungarischer Lebensart und sanfter Umgebung.
Die Stadt ist besonders bekannt für ihr Thermal- und Erlebnisbad, das ganzjährig Besucher anzieht. Thermalbecken, Saunen, Außenpools und großzügige Grünanlagen machen Marcali zu einem idealen Ort für Wellness-Urlauber und Familien.
Die Umgebung der Stadt bietet zudem:
sanfte Hügellandschaften und Felder für Spaziergänge und Radtouren
traditionelle Restaurants mit regionaler Somogy-Küche
kleine Weingärten und idyllische Dörfer rund um den Balaton
eine charmante Innenstadt mit Kirchen, Parks und Kulturveranstaltungen
Dank der Nähe zum Balaton erreichen Sie die beliebtesten Badeorte wie Balatonmáriafürdő oder Fonyód in kürzester Zeit - perfekt für spontane Strandtage oder Wassersport.
Entfernungen von Marcali zu wichtigen Städten
Marcali liegt verkehrsgünstig zwischen Südwestungarn, dem Balaton und mehreren Großstädten:
Wien: ca. 220 km
→ etwa 2 Stunden 40 Minuten Fahrt
Budapest: ca. 175 km
→ rund 2 Stunden 10 Minuten Fahrt
Keszthely am Balaton: ca. 30 km
→ etwa 30 Minuten Fahrt
Marcali liegt im Komitat Somogy, nur wenige Kilometer südlich des Balaton, und ist eine charmante Kleinstadt, die Erholung, Kultur und Natur auf sehr angenehme Weise verbindet. Wer eine entspannte Alternative zu den lebhaften Balaton-Orten sucht, findet hier genau die richtige Mischung aus Ruhe, ungarischer Lebensart und sanfter Umgebung.
Die Stadt ist besonders bekannt für ihr Thermal- und Erlebnisbad, das ganzjährig Besucher anzieht. Thermalbecken, Saunen, Außenpools und großzügige Grünanlagen machen Marcali zu einem idealen Ort für Wellness-Urlauber und Familien.
Die Umgebung der Stadt bietet zudem:
sanfte Hügellandschaften und Felder für Spaziergänge und Radtouren
traditionelle Restaurants mit regionaler Somogy-Küche
kleine Weingärten und idyllische Dörfer rund um den Balaton
eine charmante Innenstadt mit Kirchen, Parks und Kulturveranstaltungen
Dank der Nähe zum Balaton erreichen Sie die beliebtesten Badeorte wie Balatonmáriafürdő oder Fonyód in kürzester Zeit - perfekt für spontane Strandtage oder Wassersport.
Entfernungen von Marcali zu wichtigen Städten
Marcali liegt verkehrsgünstig zwischen Südwestungarn, dem Balaton und mehreren Großstädten:
Wien: ca. 220 km
→ etwa 2 Stunden 40 Minuten Fahrt
Budapest: ca. 175 km
→ rund 2 Stunden 10 Minuten Fahrt
Keszthely am Balaton: ca. 30 km
→ etwa 30 Minuten Fahrt
Sonstiges:
🏡 Ganz gleich, ob Sie eine Immobilie in Ungarn kaufen möchten oder Ihre Liegenschaft verkaufen wollen: Immocenter Ungarn ist Ihr kompetenter und vertrauensvoller Partner direkt vor Ort. Mit unserer langjährigen Erfahrung, exzellenter Marktkenntnis und persönlicher Betreuung begleiten wir Sie sicher und transparent durch den gesamten Kauf- oder Verkaufsprozess.
💡 Tipp: Achten Sie auf unsere einzigartige A-B-C-Klassifizierung in der Überschrift unserer Objekte! Die Bedeutung dieser Einstufung finden Sie ausführlich erklärt auf unserer Startseite.
✅ Immobiliencheck - Sicherheit vor dem Kauf
Sie haben bereits eine Immobilie gefunden und möchten sicher sein, dass Preis und Zustand stimmen? Unser zertifizierter Bausachverständiger prüft Ihre Wunschimmobilie gründlich und bewertet den angemessenen Kaufpreis. So vermeiden Sie teure Überraschungen - denn in Ungarn gilt meist "gekauft wie gesehen", nachträgliche Mängelrügen sind kaum durchsetzbar.
🤝 Individuelle Beratung - persönlich, unabhängig und fair
Auf Wunsch können Sie mit uns einen unabhängigen Beratungsvertrag abschließen - selbstverständlich freiwillig und nicht an ein bestimmtes Objekt gebunden. Unser Service umfasst:
✔️ Detaillierte Erfassung Ihrer Suchkriterien in einem persönlichen Suchprofil
✔️ Vorschläge passender Immobilien - so lange, bis Sie Ihr Wunschobjekt gefunden haben
✔️ Gemeinsame Besichtigungen inklusive fundierter Risikoabschätzung durch unseren Bausachverständigen und Energieberater (im Umkreis von ca. 50 km um Hévíz/Keszthely)
✔️ Betreuung und Unterstützung bei der Abwicklung aller Kauf-Formalitäten
✔️ Vermittlung eines deutschsprachigen Notars oder Rechtsanwalts
✔️ Bereitstellung einer deutschen Kaufvertragsübersetzung und Begleitung durch einen deutschsprachigen Anwalt
✔️ Unterstützung bei der Ummeldung von Strom, Gas, Wasser & Co.
✔️ Auf Wunsch: zuverlässige Hausbetreuung während Ihrer Abwesenheit
🌟 Immocenter Ungarn - sicher, kompetent und immer an Ihrer Seite.
Wir freuen uns darauf, Sie persönlich kennenzulernen und Ihren Traum von einer Immobilie in Ungarn Wirklichkeit werden zu lassen!
💡 Tipp: Achten Sie auf unsere einzigartige A-B-C-Klassifizierung in der Überschrift unserer Objekte! Die Bedeutung dieser Einstufung finden Sie ausführlich erklärt auf unserer Startseite.
✅ Immobiliencheck - Sicherheit vor dem Kauf
Sie haben bereits eine Immobilie gefunden und möchten sicher sein, dass Preis und Zustand stimmen? Unser zertifizierter Bausachverständiger prüft Ihre Wunschimmobilie gründlich und bewertet den angemessenen Kaufpreis. So vermeiden Sie teure Überraschungen - denn in Ungarn gilt meist "gekauft wie gesehen", nachträgliche Mängelrügen sind kaum durchsetzbar.
🤝 Individuelle Beratung - persönlich, unabhängig und fair
Auf Wunsch können Sie mit uns einen unabhängigen Beratungsvertrag abschließen - selbstverständlich freiwillig und nicht an ein bestimmtes Objekt gebunden. Unser Service umfasst:
✔️ Detaillierte Erfassung Ihrer Suchkriterien in einem persönlichen Suchprofil
✔️ Vorschläge passender Immobilien - so lange, bis Sie Ihr Wunschobjekt gefunden haben
✔️ Gemeinsame Besichtigungen inklusive fundierter Risikoabschätzung durch unseren Bausachverständigen und Energieberater (im Umkreis von ca. 50 km um Hévíz/Keszthely)
✔️ Betreuung und Unterstützung bei der Abwicklung aller Kauf-Formalitäten
✔️ Vermittlung eines deutschsprachigen Notars oder Rechtsanwalts
✔️ Bereitstellung einer deutschen Kaufvertragsübersetzung und Begleitung durch einen deutschsprachigen Anwalt
✔️ Unterstützung bei der Ummeldung von Strom, Gas, Wasser & Co.
✔️ Auf Wunsch: zuverlässige Hausbetreuung während Ihrer Abwesenheit
🌟 Immocenter Ungarn - sicher, kompetent und immer an Ihrer Seite.
Wir freuen uns darauf, Sie persönlich kennenzulernen und Ihren Traum von einer Immobilie in Ungarn Wirklichkeit werden zu lassen!
Provision:
.
Ihr Ansprechpartner
Immocenter Ungarn | Hotel Consulting Meyer Kft
Herr C.Meyer REBA Immobilien AG
Pletschenstrasse 20
3952 Susten (CH)
Telefon: +49 171 6234010
Mobil: +43 677 62820325
Herr C.Meyer REBA Immobilien AG
Pletschenstrasse 20
3952 Susten (CH)
Telefon: +49 171 6234010
Mobil: +43 677 62820325
Zurück zur Übersicht





















